Villa a schiera d'angolo in vendita

Saint-Vincent, Via Tromen
€ 245.000
4 locali 4 locali
210 Mq 210 Mq
3 bagni 3 bagni

Villa a schiera d'angolo in vendita

Saint-Vincent, Via Tromen

Descrizione annuncio

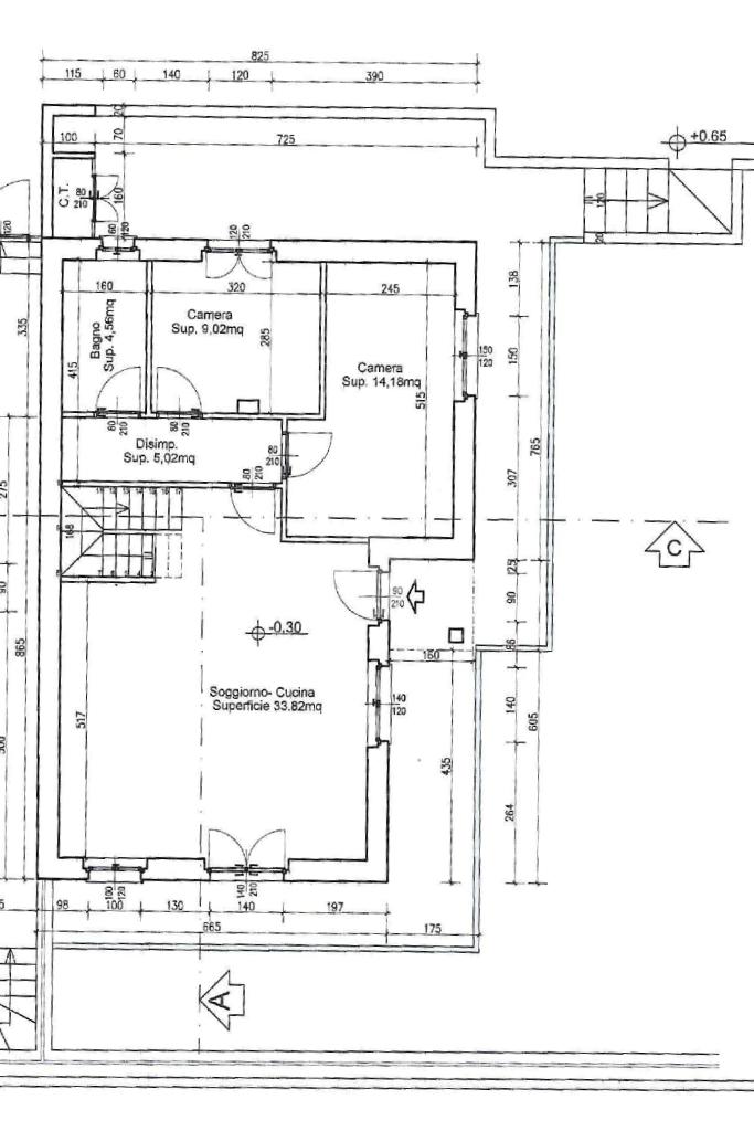
Posta nella prima collina del comune di Saint-Vincent, questa villa d'angolo di categoria signorile, è frutto di una nuova costruzione del 20109/2011. L'immobile, che si estende su 210 mq commerciali distribuiti su più livelli, rappresenta un'opportunità unica per chi desidera personalizzare la propria abitazione.

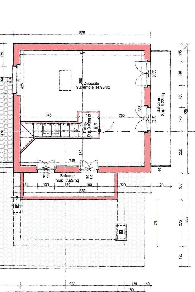
Il progetto prevedeva la realizzazione di un grande soggiorno con cucina a vista, uno studio ed un bagno al piano terra, due camere, un salotto (terza camera) bagno e terrazzo al piano primo. Il piano interrato avrebbe dovuto essere diviso in una zona deposito/taverna ed una lavanderia, oltre al garage doppio. La struttura è completa e gli impianti sono già abbozzati, permettendo di ultimare i lavori secondo le proprie esigenze.

La proprietà include un'ampia area verde, ideale per momenti di relax all'aperto. Sono disponibili quattro posti auto esterni e i due garage, garantendo ampio spazio per il parcheggio. La disposizione interna consente in alternativa al progetto originario la possibilità di realizzare due alloggi distinti, offrendo flessibilità e potenziale per diverse soluzioni abitative. Questa villa rappresenta una scelta ideale per chi cerca una residenza personalizzabile in una zona tranquilla e non lontana dal centro.

Mostra tutto

Nelle vicinanze

Trasporto pubblico Trasporto pubblico
Châtillon-Saint-Vincent
Châtillon-Saint-Vincent
2,5 Km
Saint Vincent Autostazione
Saint Vincent Autostazione
390 m
Saint Vincent Casinò
Saint Vincent Casinò
500 m
Ricariche auto elettriche Ricariche auto elettriche
Hotel Au Soleil
450 m
Grand Hotel Billia
530 m
Duferco Martiri della Libertà
720 m
Conad Châtillon | EnelX
1,9 Km
Duferco Châtillon
2,0 Km
Scuole Scuole
Scuola Primaria "André Ferré"
600 m
Scuola Secondaria "Ernest Page"
640 m
Liceo Scientifico "Binel-Viglino"
720 m
Villa Panorama
790 m
Scuola La Sounere
1,4 Km
Farmacia Farmacia
Farmacia Repetto
580 m
Parafarmacia Conad
1,9 Km
Supermercati Supermercati
Crai
410 m
A&O
940 m
Conad
1,9 Km
Carrefour Express
2,3 Km
Negozi Negozi
Panetteria Glavinaz
450 m
Pasticceria Benedetto
520 m
Panificio Calvi
540 m
Pasticceria Caffetteria Bertoncin
2,3 Km
Bar Bar
Duetto
420 m
Caffè Savini
510 m
Bar Italia
560 m
Bar Ponte Romano
650 m
Bar
2,0 Km
Ristoranti Ristoranti
Le Grenier
430 m
Ristorante Pizzeria Gi&Gi
470 m
Pizzeria I tre archi
490 m
Trattoria
500 m
Vinothek
520 m
Mostra tutto

Caratteristiche

Rif.:
61101592
Piano:
Su più livelli di 3
Totale piani:
3
Box:
2
Posti auto:
4
Balconi:
2
Mostra tutto
Prezzo Prezzo
€ 245.000
Rata mutuo Rata mutuo
€ 1.155 / mese
Spese annue Spese annue
€ 0
Proponi il tuo prezzoProponi il tuo prezzo

Classe Energetica

G
G
G
G
G
G
G
G
G
EP globale non rinnovabile:
1000.00 kW h/m² anno
EP globale rinnovabile:
0.00 kW h/m² anno
EP invernale del fabbricato:
EP estiva del fabbricato:
Anno di costruzione:
2010
Riscaldamento:
Autonomo
Tipo impianto:
A radiatori
Tipo alimentazione:
Metano

Ti interessa visionare l'immobile?

Fissa un appuntamento  Fissa un appuntamento

Richiedi informazioni

Clicca su Leggi per aprire l'informativa
* Questi campi sono obbligatori

Calcola il tuo mutuo

Semplice e senza impegno
Anticipo

( % )
Mutuo

( % )

pochi semplici passi

inserisci i tuoi dati
Questionario completato
Grazie per aver richiesto un appuntamento senza impegno con un nostro Consulente del Credito e Assicurativo.

Hai inserito correttamente tutti i dati necessari e a breve riceverai una e-mail con un link da convalidare per inviare i tuoi dati.
Affiliato
Studio Chatillon Sas
Via Tollen, 1/A 11024 Châtillon (AO)

Il nostro staff


  • Riccardo Donazzan
    Affiliato

  • Rebecca Accorigi
    Coordinatrice
Via Tollen, 1/A 11024 Châtillon (AO)
Zona: Châtillon-Pontey-Saint Vincent-Verrès-Valle Del Cervino
Mostra su mappa
Orari: 8.30-12.30 14.30-19.30
Affiliato
Studio Chatillon Sas
Via Tollen, 1/A 11024 Châtillon (AO)

2026 Tecnocasa Franchising S.p.A. - P. IVA 08365160152 - Via Monte Bianco 60/A 20089 Rozzano (MI). Ogni agenzia ha un proprio titolare ed è autonoma. Privacy policy | Policy utilizzo | Cookie policy