Bilocale in vendita

Châtillon, Via pellissier
€ 64.000
2 locali 2 locali
45 Mq 45 Mq
1 bagno 1 bagno

Bilocale in vendita

Châtillon, Via pellissier

Descrizione annuncio

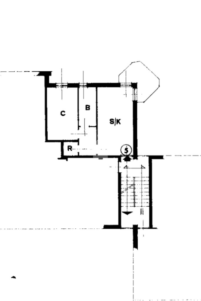
L'appartamento è situato in un contesto condominiale signorile posto in prossimità del centro storico di Châtillon, a pochi passi dalla fermata di snodo degli autobus della Valle d'Aosta e adiacente ad un grande parcheggio pubblico gratuito. Lo stabile, costruito a metà degli anni '70 è ben tenuto e dispone di due parcheggi riservati ai condomini.

L'ingresso dell'alloggio apre direttamente sulla zona giorno con angolo cottura arredato con mobili in stile tipico montano. La zona giorno ha accesso sul piacevole terrazzino ove è possibile tenere un tavolino per una colazione od un pranzo all'aperto. Un disimpegno separa la zona giorno dalla zona notte.

La camera matrimoniale è spaziosa e luminosa. Un pratico ripostiglio amplia la possibilità di stoccare materiale. Il bagno è stato rifatto recentemente, è finestrato e presenta un comodo box doccia.

L'appartamento è ceduto completamente ammobiliato. Il riscaldamento è centralizzato, ma le spese condominiali sono contenute.

Mostra tutto

Nelle vicinanze

Trasporto pubblico Trasporto pubblico
Châtillon-Saint-Vincent
Châtillon-Saint-Vincent
760 m
Châtillon Autostazione
Châtillon Autostazione
50 m
Châtillon Rist. Rendez Vous
Châtillon Rist. Rendez Vous
380 m
Ricariche auto elettriche Ricariche auto elettriche
La Cave Des Amis Ristorante Pizzeria
390 m
Duferco Châtillon
550 m
Conad Châtillon | EnelX
590 m
Grand Hotel Billia
2,0 Km
Hotel Au Soleil
2,1 Km
Scuole Scuole
I.p.r.a.
420 m
Scuola La Sounere
1,1 Km
Villa Panorama
1,7 Km
Scuola Primaria Jean-André Arbenson
2,2 Km
Scuola Primaria "André Ferré"
2,6 Km
Farmacia Farmacia
Parafarmacia Conad
550 m
Farmacia Repetto
2,5 Km
Supermercati Supermercati
Carrefour Express
150 m
Conad
540 m
A&O
1,5 Km
Crai
2,5 Km
Negozi Negozi
Pasticceria Caffetteria Bertoncin
160 m
Panetteria Glavinaz
2,5 Km
Pasticceria Benedetto
2,5 Km
Panificio Calvi
2,5 Km
Bar Bar
Bar
490 m
Bar Copapan
530 m
Bar Les Amis
700 m
Buffet della stazione
750 m
Duetto
2,3 Km
Ristoranti Ristoranti
Ristorante Pizzeria Valdostano
90 m
Ristorante Pizzeria Cervino
340 m
Ristoranti
1,4 Km
GoKart
1,4 Km
Trattoria - Bar - Tabacchi
1,4 Km
Mostra tutto

Caratteristiche

Rif.:
61088163
Piano:
1 di 3 (Piano medio)
Terrazzi:
1
Camere da letto:
1
Arredamento:
Completo
Condizionamento:
Assente
Mostra tutto
Prezzo Prezzo
€ 64.000
Rata mutuo Rata mutuo
€ 304 / mese
Spese annue Spese annue
€ 1.200
Proponi il tuo prezzoProponi il tuo prezzo

Classe Energetica

G
G
G
G
G
G
G
G
G
EP globale non rinnovabile:
417.60 kW h/m² anno
EP globale rinnovabile:
0.00 kW h/m² anno
EP invernale del fabbricato:
EP estiva del fabbricato:
Anno di costruzione:
1975
Riscaldamento:
Centralizzato
Tipo impianto:
A radiatori
Tipo alimentazione:
Metano

Ti interessa visionare l'immobile?

Fissa un appuntamento  Fissa un appuntamento

Richiedi informazioni

Clicca su Leggi per aprire l'informativa
* Questi campi sono obbligatori

Calcola il tuo mutuo

Semplice e senza impegno
Anticipo

( % )
Mutuo

( % )

pochi semplici passi

inserisci i tuoi dati
Questionario completato
Grazie per aver richiesto un appuntamento senza impegno con un nostro Consulente del Credito e Assicurativo.

Hai inserito correttamente tutti i dati necessari e a breve riceverai una e-mail con un link da convalidare per inviare i tuoi dati.
Affiliato
Studio Chatillon Sas
Via Tollen, 1/A 11024 Châtillon (AO)

Il nostro staff


  • Riccardo Donazzan
    Affiliato

  • Rebecca Accorigi
    Coordinatrice
Via Tollen, 1/A 11024 Châtillon (AO)
Zona: Châtillon-Pontey-Saint Vincent-Verrès-Valle Del Cervino
Mostra su mappa
Orari: 8.30-12.30 14.30-19.30
Affiliato
Studio Chatillon Sas
Via Tollen, 1/A 11024 Châtillon (AO)

2026 Tecnocasa Franchising S.p.A. - P. IVA 08365160152 - Via Monte Bianco 60/A 20089 Rozzano (MI). Ogni agenzia ha un proprio titolare ed è autonoma. Privacy policy | Policy utilizzo | Cookie policy